• Novo višestambeno naselje

2450 €/m2

*cijene s PDV-om
cijena stanova

Projekt Dubrava – Žuti dol

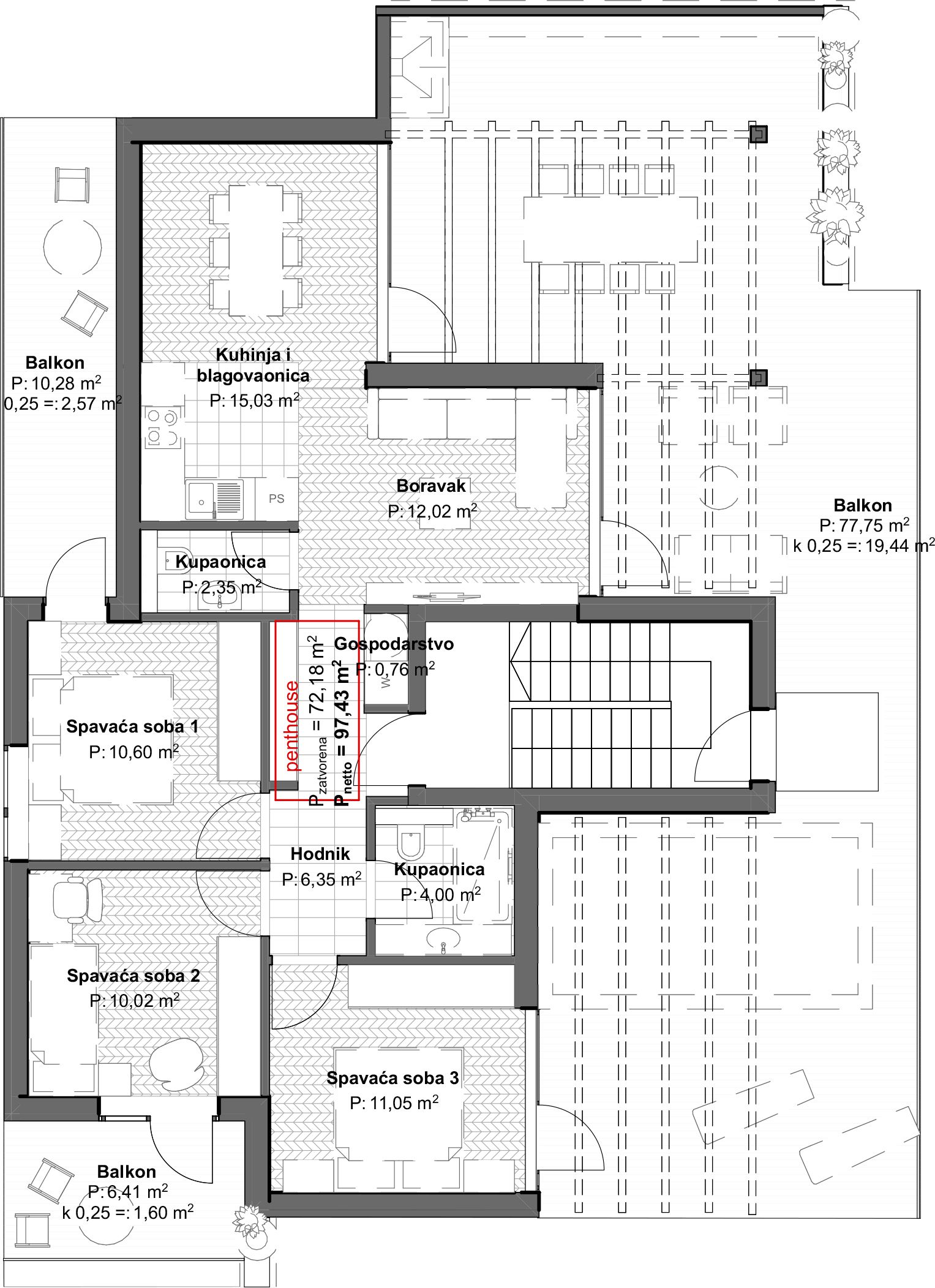
II kata – Penthouse – dva parkirna mjesta – lift

108 m2

površina stana

3

spavače soba

2

kupaonice

grijanje

centralno etažno plinsko

2

balkona

2

parkirno mjesto
Informacije o projektu

O projektu

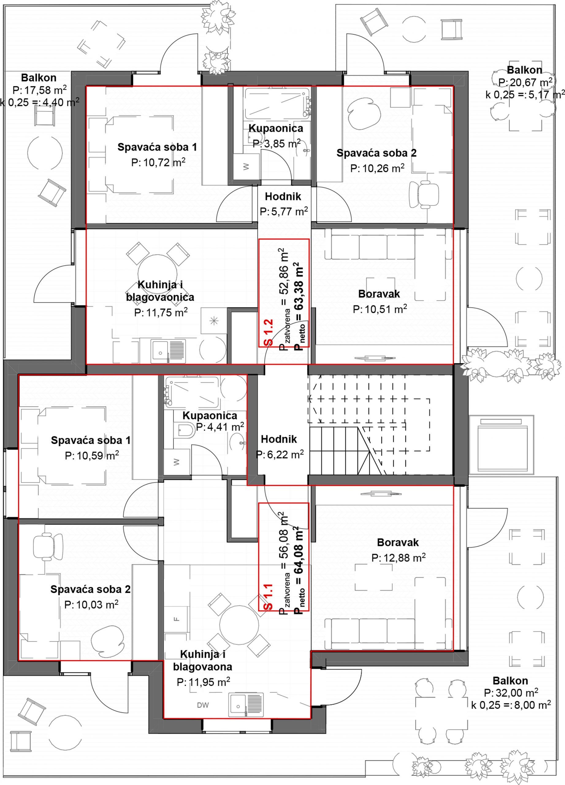
Projekt je zamišljen kao manje naselje u koje je smješteno 5 samostojećih građevina s po 5 stambenih jedinica, odnosno ukupno 25 stanova. Građevine su katnosti podrum, prizemlje, kat i uvučeni kat, iste karakterizira moderno i lijepo arhitektonsko rješenje, idealno uklopljenih u okoliš. Veličina zemljišta od 4000 m2 osigurava primjerenu distancu između planiranih građevina.

U projektu su predviđeni trosobni i četverosobni stanovi optimalnog tlocrta, bez tzv. izgubljenih kvadrata. Svaki stan kao pripadak ima 2 parkirna mjesta (jedno garažno i jedno vanjsko nenatkriveno) te spremište u podrumu. Stanovi u prizemlju imaju pripadajuće vrtove i balkone , stanovi na katu prostrane balkone, a stanovi na uvučenom katu velike terase. Vrtovi prizemnih stanova će u baznoj verziji imati: podest za roštilj, stepenište, kompletnu ograđenost, dovod i odvod vode te popločeni dio oko stepeništa.

Informacije o stanovima
Informacije o stanovima

Penthouse

7 stanova na etaži, 5. kat

Zainteresirani za kupnju stana i želite saznati više informacija?
+385 98 282 057 / marijana@azori-plus.hr

Velika Gorica stanovi

GRADNJA SIRIUS PLAN d.o.o.

Slavka Kolara 24B, 44 250 Petrinja OIB: 22452805349, MB: 081350445

© 2021. GRADNJA SIRIUS PLAN d.o.o. - Sva prava pridržana.

Zastupanje

Velika Gorica stanovi